Rimjhim Flagship
Interior | Retail, Commercial
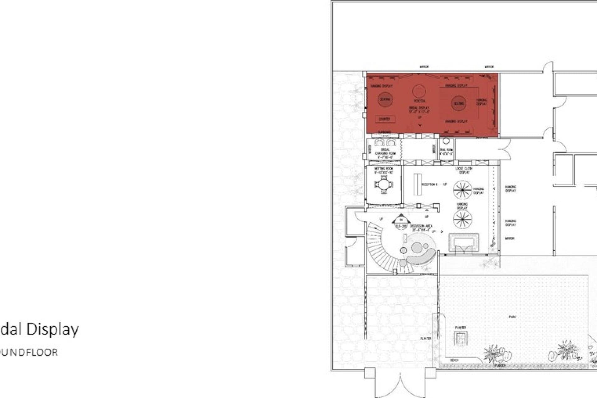
Project Details: Rim Jhim Flagship Store, Karachi, 209 SQ MTR | 2260 SQ FT
Role: Design Lead
Design Consultant: Coalesce Design Studio
Design Intent: RimJhim is a well-known second generation business of bridal couture in Pakistan. For its flagship store, the brand wanted to reintroduce their unparalleled craft work along with a retail experience that is luxurious and depicts the soul of the brand.
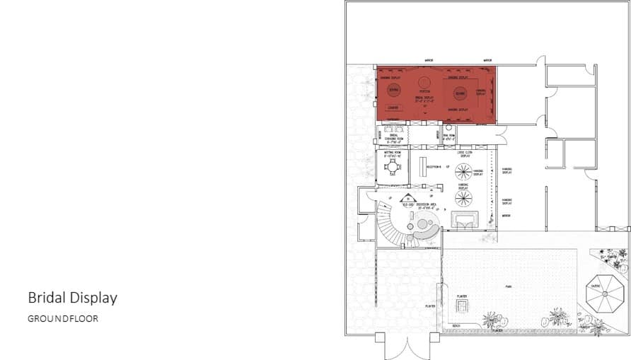
The design for this store incorporates elements of Islamic and Classical architecture, much like its textile master pieces intertwining muted palettes so that the products to take centre stage and stand out. Playfulness is achieved through the categorization of product displays by color, while calculated lighting enhances their visibility. Intricate details are carefully incorporated into the design of the hanging systems.
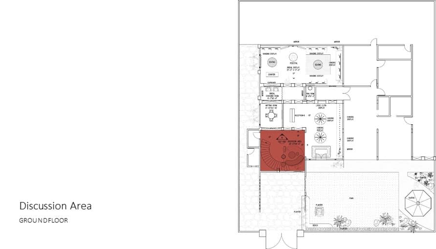
An oversized chandelier along an existing round staircase creates just the setting for a captivating product merchandise of standing mannequins dressed in RimJhim outfits along the curved staircase. Ornate arches serve as space dividers and niches, providing a subtle yet complementary backdrop for curated product displays and discussion areas.
The brand specializes in crafting bespoke pieces that reflect today’s trends while drawing inspiration from the opulent traditions of the historic sub-continental culture. RimJhim’s bridal studio exudes luxury and nostalgia, blending trendy and eclectic elements
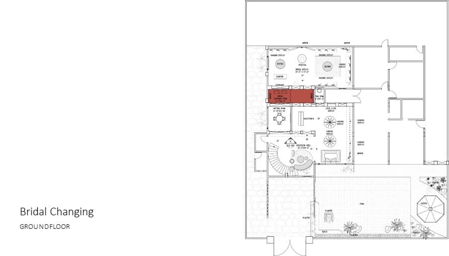
For the bridal fitting rooms, a spill-out area outside of it offers a premium feel with a clever use of mirrors, inviting them to immerse themselves in the luxury of RimJhim’s outfits.
Outside of this boutique sits a picturesque pergola that also serves as a curatorial stage for product shoots.

























































